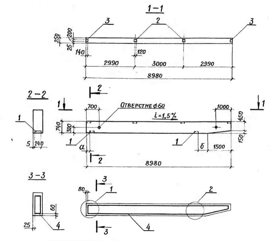
Балка навеса 2БН 7,5-3 представляет собой железобетонную конструкцию, предназначенную для использования в строительстве навесов, козырьков, навесных конструкций и других объектов. Балка имеет прочную железобетонную основу, что обеспечивает надежность и долговечность конструкции.
Балка навеса 2БН 7,5-3 широко используется в строительстве для создания навесов над входами, террасами, автомобильными стоянками и другими объектами. Она обеспечивает необходимую поддержку и защиту от осадков, обеспечивая комфортное пребывание людей и сохранность транспортных средств. Балка навеса 2БН 7,5-3 отличается простотой монтажа и устойчивостью к внешним воздействиям, что делает ее идеальным выбором для различных строительных проектов.









